• Nový kvalitní mobilheim za rozumnou cenu
  • Zateplený mobilheim je vhodný i pro trvalé bydlení
  • Mobilheim celoroční jako zvětšení rodinného domu
  • Mobilheim jako rekreační objekt
  • Mobilheim jako ubytovací zařízení do kempů
  • Mobilheim jako kancelářské prostory
  • Mobilheim jako sklad
Mobilheim Hluboká nad Vltavou

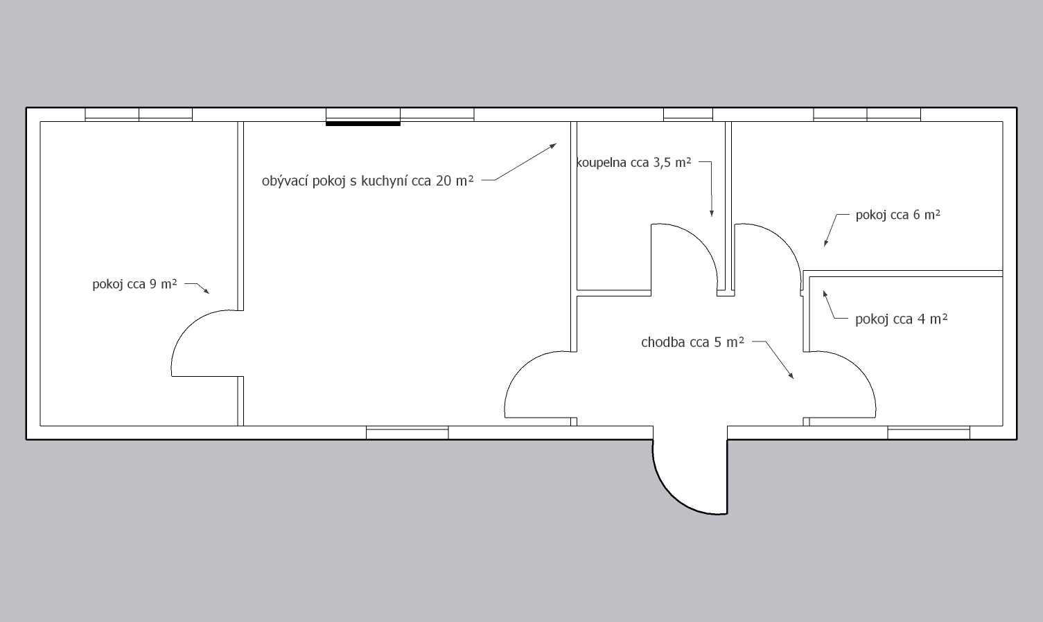
Nový ROSI 4+kk - Celoroční dřevěný - sedlová střecha

Rozměry: 13,2 x 4m (cca 53m2)
Rozvržení: 3 pokoje, bývací pokoj s kuchyňským koutem, koupelna, WC
Výbava: Nový mobilheim, dřevěný obklad, vnitřní stěny sádrokarton, strop dřevěný obklad, podlaha zátěžové lino, kuchyně (dřez, digestoř, varná deska s troubou), koupelna (WC, umyvadlo, sprchový box, bojler 80l), síla vnějších stěn cca 17 cm (minerální vata), podlahy cca 15 cm (minerální vata), střechy cca 24 cm (minerální vata)
Vytápění: Rozvod pro elektrická topidla, krbová kamna
Dostupnost: Skladem
Cena: Akce 1 599 000 Kč vč. DPH
Ušetříte: 365 000 Kč
Příplatek: Možnost upravit na 3+kk



Pokud si nevyberete mobilheim z naší nabídky, tak Vám rádi vyrobíme mobilheim podle Vašich představ.

mobilheim_IMG_0017 mobilheim_58ba3c75-d602-4940-bfb7-e55b28cbe197 mobilheim_IMG_5555 mobilheim_ROSI4+kk_sedlova_strecha_53m2_drevo_skladem mobilheim_ROSI4+kk_sedlova_strecha_53m2_drevo_skladem2 mobilheim_ROSI4kk_484cc78b-f142-4f07-8999-ac8c8a0d3928 mobilheim_ROSI4kk_7c5d7f1f-4da9-40c0-a793-e1812621cb24 mobilheim_IMG_3102 mobilheim_ROSI4kk_57ac5414-a7e9-4766-a550-e2b4f70ede5d mobilheim_ROSI4kk_46409798-adea-42dc-9a46-0e2bae5ab4f5 - kopie mobilheim_Obrázek PNG1 mobilheim_ROSI4kk_145d439e-86c2-4d7a-87a8-8eba6dcc0c52 - kopie mobilheim_Obrázek PNG3 mobilheim_ROSI4kk_9e191e7c-6d58-433e-94bb-af4e4cbf3d67 - kopie mobilheim_Obrázek PNG2 mobilheim_ROSI4kk_9d40d514-c75c-4b3b-83b3-e7fb4faa3f7a - kopie mobilheim_ROSI4kk_06ba7850-c320-4966-95bb-f4b2ed6eed0d - kopie mobilheim_ROSI4kk_73bb5b19-c82b-4568-8bf2-8e4f012c7cff mobilheim_ROSI4kk_b0cec6ab-5eb0-40e9-a577-cb53cb8414d2 mobilheim_IMG_3103 mobilheim_ROSI4kk_pudorys_skladem mobilheim_pohled_rosi4kk_sedlova_strecha_53m2_drevo_skladem mobilheim_vyska_stropu1 mobilheim_ROSI3kk_sedlova_strecha_53m2_drevo_skladem

Mobilní domy Jižní Čechy s.r.o.

Tel: +420 606 757 065,

Email: info@mobilheim-hluboka.cz

mobilni-domy-jizni-cechy-facebook  mobilni_domy_pinterest  mobilni_domy_jizni_cechy_blogger  mobilni_domy_jizni_cechy_youtube 

Prodejní centrum Mobilheim Hluboká:

Hluboká nad Vltavout - Zámostí u vlakového nádraží

GPS: 49.0501917°N, 14.4654153°E

mobilni_domy_jizni_cechy

Mobilheim Hluboká - Nový mobilheim celoroční výroba

Mobilhem Hluboká - Nový mobilheim celoroční přeprava

 

TENTO WEB POUŽÍVÁ COOKIES
Pokud kliknete na „Přijmout vše“, poskytnete tím souhlas k jejich ukládání na vašem zařízení, což pomáhá s navigací na stránce, s analýzou využití dat a s našimi marketingovými snahami.
Více informací
  1. Jsou nezbytné k tomu, aby web fungoval, takže není možné je vypnout. Většinou jsou nastavené jako odezva na akce, které jste provedli, jako je požadavek služeb týkajících se bezpečnostních nastavení, přihlašování, vyplňování formulářů atp. Prohlížeč můžete nastavit tak, aby blokoval soubory cookie nebo o nich posílal upozornění. Mějte na paměti, že některé stránky bez těchto souborů nebudou fungovat. Tyto soubory cookie neukládají žádné osobní identifikovatelné informace.
  2. Pomáhají sledovat počet návštěvníků a také z jakého zdroje provoz pochází, což nám umožňuje zlepšovat výkon stránky. Můžeme s nimi určovat, které stránky jsou nejoblíbenější a které nejsou oblíbené, a také sledovat, jakým způsobem se návštěvníci na webu pohybují. Všechny informace, které soubory cookie shromažďují, jsou souhrnné a anonymní. Pokud soubory cookie nepovolíte, nebudeme vědět, kdy jste navštívili naši stránku.
  3. Tyto soubory cookie mohou na naší stránce nastavovat partneři z reklamy. Mohou je používat na vytváření profilů o vašich zájmech a podle nich vám zobrazovat reklamy i na jiných stránkách. Neukládají ale vaše osobní informace přímo, nýbrž přes jedinečné identifikátory prohlížeče a internetového zařízení. Pokud je nepovolíte, bude se vám zobrazovat na stránkách méně cílená propagace.

Svůj souhlas můžete kdykoliv změnit nebo odvolat kliknutím na odkaz Cookies v zápatí webu.